Ampio trilocale con doppia esposizione a 2,5 km da Albenga. Luminoso, in perfette condizioni, con terrazzi e box. Ideale come prima casa
MB Case Immobiliare propone in vendita, a soli 2,5 km dal centro di Albenga, nella tranquilla frazione di San Fedele, un ampio trilocale luminosissimo in perfette condizioni, ideale come prima casa.
L’appartamento si trova al secondo piano di una palazzina dotata di ascensore, con tetto recentemente ristrutturato, e si distingue per la doppia esposizione che garantisce ambienti ariosi e luminosi durante tutto il giorno.
Descrizione dell’immobile
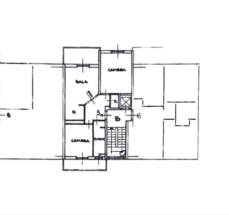
La proprietà si apre su un ampio ingresso, che conduce a una zona giorno open-space con cucina e soggiorno integrati, un ambiente accogliente e funzionale, perfetto per vivere la casa in totale comfort.
La zona notte comprende due spaziose camere matrimoniali, ideali per famiglie o coppie che desiderano ampi spazi abitativi.
Completano l’appartamento due terrazzi con vista aperta, un bagno finestrato con ampia doccia e un comodo ripostiglio.
Caratteristiche e dotazioni
-
Superficie: 90 m² commerciali (87 m² calpestabili)
-
Riscaldamento autonomo a gas metano
-
Spese condominiali contenute
-
Doppia esposizione nord-sud
-
Palazzina in ottime condizioni con ascensore
-
Possibilità di box auto di circa 21 m² sotto casa a € 20.000
Perché sceglierlo
Questo trilocale in vendita ad Albenga rappresenta una soluzione abitativa perfetta per chi cerca una casa luminosa, spaziosa e pronta da abitare, in un contesto tranquillo ma comodo ai principali servizi e al mare.
L’appartamento unisce comodità, eleganza e funzionalità, offrendo un’ottima qualità abitativa e un eccellente rapporto qualità-prezzo.
Prezzo richiesto: € 199.000
📍 San Fedele – Albenga (SV)
👉 Contatta MB Case Immobiliare per maggiori informazioni o per prenotare una visita.

