🍕 Ristorante – Pizzeria Storica in Vendita a Garlenda
Posizione strategica | Attività avviata | Ampi spazi interni ed esterni
In posizione di forte passaggio sulla strada principale di Garlenda, a pochi passi dal rinomato Museo della Fiat 500, proponiamo in vendita avviata attività di ristorante, pizzeria e bar, punto di riferimento storico della zona.
L’attività è a conduzione familiare e si avvale di personale qualificato e fidelizzato, elemento che garantisce continuità operativa e qualità del servizio. La clientela è consolidata, sia locale che turistica.
🔹 Caratteristiche principali
-
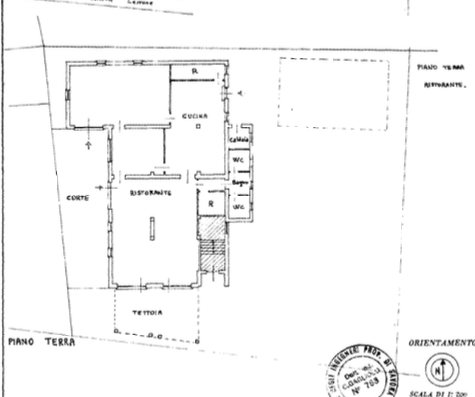
Capienza complessiva: circa 150/170 posti a sedere tra interno ed esterno
-
Superficie commerciale: 186 m²
-
Superficie calpestabile: 170 m²
-
Piano terra con 3 ampie vetrine, eccellente visibilità
-
Parcheggio privato a servizio della clientela
-
Arredi e attrezzature incluse, perfettamente funzionanti
-
Canna fumaria, aria condizionata
-
Bagni a norma, inclusi servizi per persone con disabilità
🔹 Orari attuali
-
Bar: 7:00 – 14:00 e 17:00 – 23:00
-
Ristorante/Pizzeria: servizio serale
👉 Importante potenziale di sviluppo, con possibilità di ampliamento degli orari e dei servizi (pranzi, colazioni, eventi, delivery).
🔹 Perché è un’ottima opportunità
-
Attività pronta al subentro, senza necessità di interventi strutturali
-
Posizione strategica in zona turistica e di passaggio
-
Ideale per imprenditori del settore horeca o investitori alla ricerca di un’attività già avviata e redditizia
📞 Contattaci per maggiori informazioni o per fissare una visita riservata.
Un’occasione rara per entrare in un mercato solido con ampi margini di crescita.

